Bursa'da devasa kentsel dönüşüm! Yeni bir bulvar geliyor...
Bursa'da devasa kentsel dönüşüm! Yeni bir bulvar geliyor...
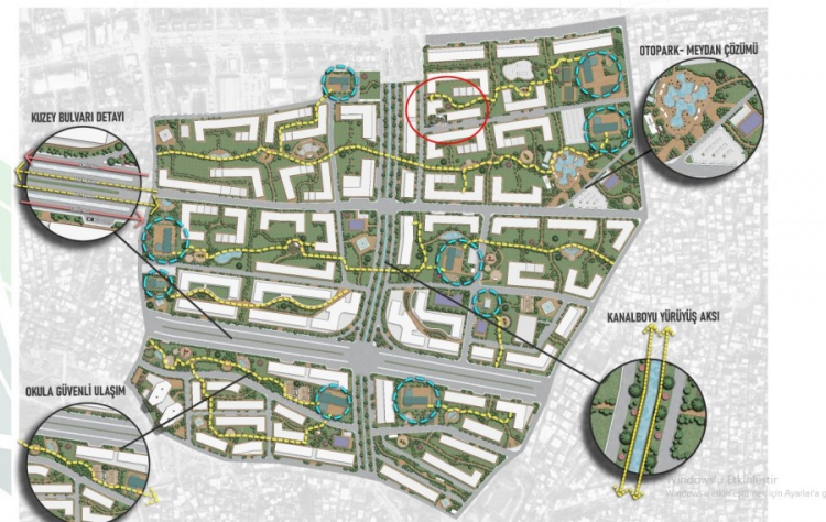
Bursa'da 380 hektarlık alanda ekolojik temelli kentsel dönüşüm başlıyor. Ankara İzmir yolunda Mudanya yoluna paralel olmak üzere 29 kilometre uzunluğunda 65 metrelik kuzey bulvarını ortaya çıkaran bir planlama yapıldı. Bursa Büyükşehir Belediye Başkanı Mustafa Bozbey, "380 hektarlık alanda ekolojik temelli yeşil sisteme uygun, öğrencilerin okullarına yürüyerek gideceği kentsel tasarımı aralıksız sürdürüyoruz. Yeni yollar ortaya çıkacak" dedi.
Haber Giriş Tarihi: 06.01.2026 11:28
Haber Güncellenme Tarihi: 06.01.2026 11:30
Kaynak:
Bursada Bugün
Bursa'da 380 hektarlık alanda ekolojik temelli bütüncül kentsel tasarım planı için hazırlıklar hız kazandı. Kentsel dönüşüm kapsamında hayata geçirilecek proje, yaya öncelikli ulaşım, yeşil altyapı, ve fosil yakıtsız Pasif Ev sistemi ile tasarlanmış binalarıyla Türkiye'de örnek bir dönüşüm modeli olmayı hedefliyor. Yaya öncelikli yaklaşımın benimsendiği projede, fosil yakıt kullanılmadan Pasif Ev sistemi ile tasarlanacak binalar, bahçe duvarları olmadan yeşil sistemle bütünleşecek.
Yeşil sistem üzerine kurulu yeni imar modeli
Projede ayrık nizam yerine blok nizam tercih edilerek imar adaları büyütüldü. Bahçe duvarlarının kaldırılmasıyla birlikte kullanılmayan yan bahçeler ve önceki sistemde yol olarak ayrılan alanlar yeşil sisteme dahil edildi. Böylece, büyük yeşil sistem üzerine kurulu imar adaları oluşturuldu. 20-30 hektarlık parçacıl imar adaları uygulanabilir şekilde tasarlandı. Bu adaların çevresi en az 30 metre genişliğinde araç yollarıyla çevrilecek. Parklar, sosyal donatı alanları ve eğitim yapıları kesintisiz yeşil yaya akslarıyla birbirine bağlanacak. Proje sayesinde çocukların okula 1-2 km mesafeyi araç trafiğinden arındırılmış güvenli yaya yollarıyla yürüyerek ulaşması sağlanacak.
Günlük hayatta yaya önceliği olacak
Projenin en dikkat çekici yönlerinden biri, günlük hayatın yürüyerek erişilebilir olması. Eğitim, sağlık, sosyal donatı ve park alanları arasında kesintisiz yaya bağlantıları kurulacak. Böylece, kent sakinleri araç kullanmadan günlük ihtiyaçlarını karşılayabilecek. Bu proje sayesinde sağlıklı, erişilebilir ve sürdürülebilir bir kentsel çevre oluşturmak, çocuklar ve yaşlılar için güvenli yaşam alanları sağlamak, enerji verimliliği yüksek, fosil yakıtsız konutlar üretmek ve plansız ve çarpık gelişmiş bölgeleri dönüştürerek yaşanabilir bir kent modeli ortaya koymak amaçlanıyor. Ekolojik temelli bu tasarımın, kentin plansız ve çarpık gelişmiş bölgelerinin tamamında uygulanması hedefleniyor. İlk uygulama etabının 2026 yılında başlaması için çalışmalar başlatıldı.
Kuzey Bulvarı yeni ulaşımın omurgası
Projenin en önemli bileşenlerinden biri de 65 metre genişliğindeki Kuzey Bulvarı. Sağlıksız yapılaşmış bölgelerin dönüştürülmesiyle oluşturulacak bulvar, 29 km uzunluğunda 65 metre genişliğinde olacak şekilde kilometreler boyunca kesintisiz devam edecek. Kuzey Bulvarı, kentsel dönüşüm alanlarını kapsayan ve ekolojik temelli tasarım bölgesinden geçen ana ulaşım omurgası olacak. Ulaşım, kentsel dönüşüm ve yeşil altyapı kararları bütüncül bir bakış açısıyla ele alınacak. Bulvar, kent içi trafiği düzenlerken aynı zamanda yeşil sistemle entegre olacak.
Başkan Bozbey açıkladı
Bursa Büyükşehir Belediye Başkanı Mustafa Bozbey, 380 hektarlık alanda yeni bir kentsel tasarımı hayata geçirdiklerini ifade ederek, "Yeni alternatif yolların da bu planlama süreçlerinde ortaya çıktığını paylaşmak istiyorum. Ankara İzmir yolunda Mudanya yoluna paralel olmak üzere 29 kilometre uzunluğunda 65 metrelik kuzey bulvarını ortaya çıkaran bir planlama yapıldı. 380 hekterlık alanda ekolojik temelli yeşil sisteme uygun, öğrencilerin okullarına yüreyerek gideceği kentsel tasarımı aralıksız sürdürüyoruz" diye konuştu.
Sizlere daha iyi hizmet sunabilmek adına sitemizde çerez konumlandırmaktayız. Kişisel verileriniz, KVKK ve GDPR
kapsamında toplanıp işlenir. Sitemizi kullanarak, çerezleri kullanmamızı kabul etmiş olacaksınız.
En son gelişmelerden anında haberdar olmak için 'İZİN VER' butonuna tıklayınız.
Bursa'da devasa kentsel dönüşüm! Yeni bir bulvar geliyor...
Bursa'da 380 hektarlık alanda ekolojik temelli kentsel dönüşüm başlıyor. Ankara İzmir yolunda Mudanya yoluna paralel olmak üzere 29 kilometre uzunluğunda 65 metrelik kuzey bulvarını ortaya çıkaran bir planlama yapıldı. Bursa Büyükşehir Belediye Başkanı Mustafa Bozbey, "380 hektarlık alanda ekolojik temelli yeşil sisteme uygun, öğrencilerin okullarına yürüyerek gideceği kentsel tasarımı aralıksız sürdürüyoruz. Yeni yollar ortaya çıkacak" dedi.
Bursa'da 380 hektarlık alanda ekolojik temelli bütüncül kentsel tasarım planı için hazırlıklar hız kazandı. Kentsel dönüşüm kapsamında hayata geçirilecek proje, yaya öncelikli ulaşım, yeşil altyapı, ve fosil yakıtsız Pasif Ev sistemi ile tasarlanmış binalarıyla Türkiye'de örnek bir dönüşüm modeli olmayı hedefliyor. Yaya öncelikli yaklaşımın benimsendiği projede, fosil yakıt kullanılmadan Pasif Ev sistemi ile tasarlanacak binalar, bahçe duvarları olmadan yeşil sistemle bütünleşecek.
Yeşil sistem üzerine kurulu yeni imar modeli
Projede ayrık nizam yerine blok nizam tercih edilerek imar adaları büyütüldü. Bahçe duvarlarının kaldırılmasıyla birlikte kullanılmayan yan bahçeler ve önceki sistemde yol olarak ayrılan alanlar yeşil sisteme dahil edildi. Böylece, büyük yeşil sistem üzerine kurulu imar adaları oluşturuldu. 20-30 hektarlık parçacıl imar adaları uygulanabilir şekilde tasarlandı. Bu adaların çevresi en az 30 metre genişliğinde araç yollarıyla çevrilecek. Parklar, sosyal donatı alanları ve eğitim yapıları kesintisiz yeşil yaya akslarıyla birbirine bağlanacak. Proje sayesinde çocukların okula 1-2 km mesafeyi araç trafiğinden arındırılmış güvenli yaya yollarıyla yürüyerek ulaşması sağlanacak.
Günlük hayatta yaya önceliği olacak
Projenin en dikkat çekici yönlerinden biri, günlük hayatın yürüyerek erişilebilir olması. Eğitim, sağlık, sosyal donatı ve park alanları arasında kesintisiz yaya bağlantıları kurulacak. Böylece, kent sakinleri araç kullanmadan günlük ihtiyaçlarını karşılayabilecek. Bu proje sayesinde sağlıklı, erişilebilir ve sürdürülebilir bir kentsel çevre oluşturmak, çocuklar ve yaşlılar için güvenli yaşam alanları sağlamak, enerji verimliliği yüksek, fosil yakıtsız konutlar üretmek ve plansız ve çarpık gelişmiş bölgeleri dönüştürerek yaşanabilir bir kent modeli ortaya koymak amaçlanıyor. Ekolojik temelli bu tasarımın, kentin plansız ve çarpık gelişmiş bölgelerinin tamamında uygulanması hedefleniyor. İlk uygulama etabının 2026 yılında başlaması için çalışmalar başlatıldı.
Kuzey Bulvarı yeni ulaşımın omurgası
Projenin en önemli bileşenlerinden biri de 65 metre genişliğindeki Kuzey Bulvarı. Sağlıksız yapılaşmış bölgelerin dönüştürülmesiyle oluşturulacak bulvar, 29 km uzunluğunda 65 metre genişliğinde olacak şekilde kilometreler boyunca kesintisiz devam edecek. Kuzey Bulvarı, kentsel dönüşüm alanlarını kapsayan ve ekolojik temelli tasarım bölgesinden geçen ana ulaşım omurgası olacak. Ulaşım, kentsel dönüşüm ve yeşil altyapı kararları bütüncül bir bakış açısıyla ele alınacak. Bulvar, kent içi trafiği düzenlerken aynı zamanda yeşil sistemle entegre olacak.
Başkan Bozbey açıkladı
Bursa Büyükşehir Belediye Başkanı Mustafa Bozbey, 380 hektarlık alanda yeni bir kentsel tasarımı hayata geçirdiklerini ifade ederek, "Yeni alternatif yolların da bu planlama süreçlerinde ortaya çıktığını paylaşmak istiyorum. Ankara İzmir yolunda Mudanya yoluna paralel olmak üzere 29 kilometre uzunluğunda 65 metrelik kuzey bulvarını ortaya çıkaran bir planlama yapıldı. 380 hekterlık alanda ekolojik temelli yeşil sisteme uygun, öğrencilerin okullarına yüreyerek gideceği kentsel tasarımı aralıksız sürdürüyoruz" diye konuştu.
Kaynak: Bursada Bugün
Bursa yolunda korku dolu anlar! "Ağaç, demir ne buldularsa saldırdılar"
Bursa'da indirim izdihamı: Dondurucu soğukta saatlerce beklediler
Sosyal medyada büyük temizlik: Bakanlık düğmeye bastı, o hesaplar kapatıldı...
Fabrikada en düşük maaş 95 bin TL'ye yükseldi: İşçiler halay çekerek kutladı
Yıllar sonra bir ilk: Google yasağı kaldırılıyor!
Bu meslekler 5 yıl daha erken emekli olacak!
ABD'de skandal provokasyon: Kur'an'ı Kerim'i yakmaya çalıştılar...
Bursaspor ikinci yarıyı bugün açıyor!
Ev alacaklar dikkat 'Önümüzdeki aylar' deyip açıkladılar
Otoyolda minibüs devrildi: 11 yaralı
Çöp konteynerinde yeni doğmuş bebek cesedi bulundu
Başkent'te 'karşılıksız çek' dolandırıcılığı: Çok sayıda kişi gözaltında
Bursa'da sıcak saatler!
Yaşlılık sigortası geliyor! Prim ödeyen hak iddia edebilecek
Bursa'da hava durumu: Meteoroloji güncel tahmin raporunu paylaştı (18 Ocak Pazar)